Maison dans le Nord dans le Nord Pas de Calais

Type Maison - Villa
Personnes 12
Chambres5
Location de vacances - Maison - Villa à Socx
Location de vacances - Maison - Villa à Socx
  Description : Maison - Villa à Socx
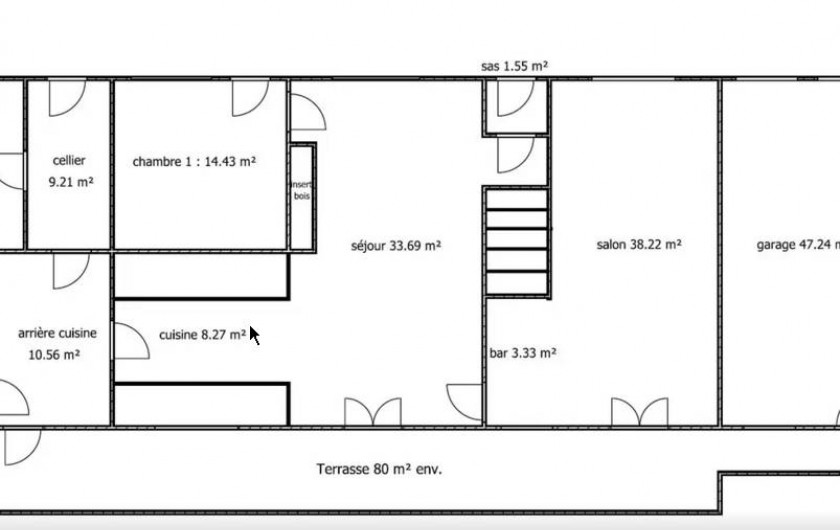
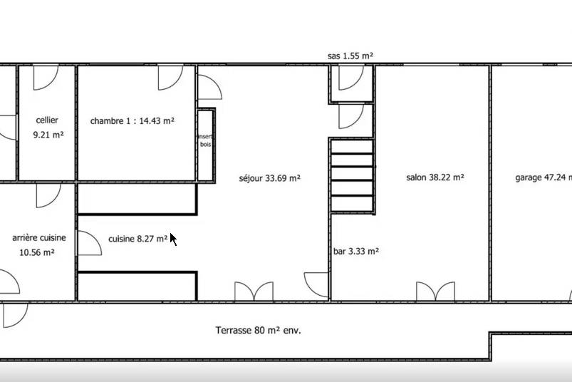
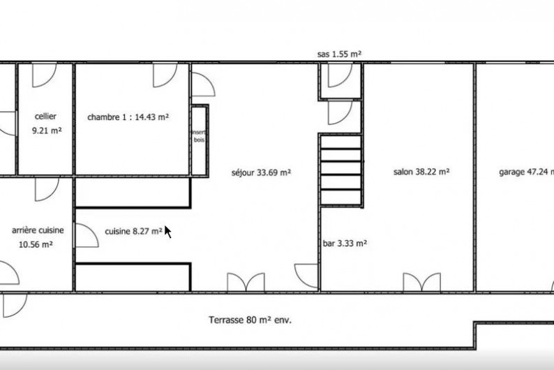
Corps de ferme spacieux sans voisinage à proximité. Idéalement situé, proche de toutes commodités : hyermarché à 3 min, autoroute à 2 min... 5 chambres, salon, cuisine équipée, salle à manger avec coin bar, terrasse plein sud de 80 m² Secteur Bergues
  Disponibilités

Pour connaître les disponibilités de cette location, veuillez contacter l'hôte directement.

  Tarifs
  • Devise de l'hôte : € - EUR
Tarifs de base
Tarif de base Nuit Nuit week-end Semaine Mois Jour d'arrivée
91 €
Conditions de location
  • Caution 500 €
  • Frais de nettoyage 100 €
  Localisation

Location de vacances - Maison - Villa - Socx, Nord, Nord-Pas-de-Calais, Hauts-de-France, France

Villes et lieux touristiques à proximité
  • Esquelbecq
  Détails
Type de logement
Maison - Villa
Nombre de personnes
12
Environnement
Campagne
N° d'annonce
117173
5 chambres
  Equipements
À disposition
  • Sèche-cheveux
Multimédia
  • Téléviseur
Photo de profil du vacancier
Photo de profil du propriétaire

Pour réserver cette location, rien de plus simple :
contactez l’hôte par mail ou par téléphone, et
réservez avec lui directement votre séjour !

Contacter l'hôte