Confort et accessibilité ! retour ski aux pieds possible, 45m² au rez-de-chaussée, casier à ski à 10m de l'appartement, Garage.

Type Appartement
Personnes 7
Chambres2
Salles de bain2
Location de vacances - Appartement à Arc 2000
Location de vacances - Appartement à Arc 2000
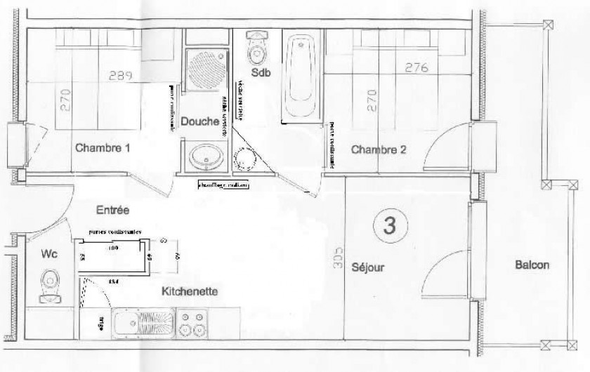
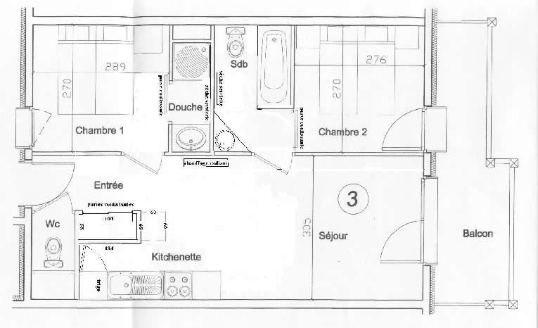
  Description : Appartement à Arc 2000

logement de 45m² rez-de-chaussée, casier à ski privatif à 10m de l'appartement
CLASSEMENT PARADISKI : 3 CRISTAUX.

SITUATION HEBERGEMENT :

Arc 2000.

A 50m des pistes (retour skis aux pieds possible)

Commerces, restaurant, centre de la station et activités accessibles à pied.

Rez-de-chaussée d'une résidence.

Pour vos vacances au ski à Arcs 2000: Charmant appartement 3 pièces 45m² avec balcon exposé Sud Ouest.

COUCHAGES :

Séjour : 1 canapé lit (160cm X200cm)

Chambre 1 avec salle de douche attenante avec évier et sèche serviette : 2 lits simples et un lit superposé
(80x195) permettant d'accueillir une 3ème personne dans la chambre.

Chambre 2 : 2 lits tapissiers pouvant être écartés l'un de l'autre ou rapprochés pour en faire un lit double de 160cmx195cm. Cette chambre a une salle de bain attenante équipée d'une baignoire, évier, wc sèche serviette et sèche cheveux.

il y a un 2ième WC séparés dans le hall d'entrée.

CUISINE équipée :

Plaques vitro-céramiques, four, lave vaisselle, micro-onde, réfrigérateur avec congélateur, cafetière électrique avec filtre permanant, Bouloire électrique, grille pain...

EQUIPEMENTS COMPLEMENTAIRES :

Télévision écran plat, Wifi et chaîne HIFI avec socle pour Ipod (connecteur 'Dock') et prise USB.

Téléphone avec ligne directe.

Accès gratuit à la piscine, sauna et salle de

fitness de la résidence du 'Chalet des Neiges'

Le casier à ski privatif à l'appartement (fermé avec la clé de l'appartement) se situe à 10m de ce dernier sur le même niveau et dans un local spécifique chauffé.

Les animaux de compagnie propres et bien éduqués sont les bienvenus après accord du propriétaire.

Le stationnement est gratuit pour vous devant la résidence et l'appartement bénéficie d'un emplacement de parking en sous-sol (box fermé à clé).

Possibilité de réserver son pain ou vienoiseries à l'accueil de la résidence du 'Chalet des Neiges' (à moins de 100m de l'appartement) qui viendra vous le déposer devant la porte de l'appartement le matin.
Lire moins Lire la suite

  Disponibilités

Pour connaître les disponibilités de cette location, veuillez contacter l'hôte directement.

  Tarifs

Pour connaître les tarifs de cette location, veuillez contacter l'hôte directement.

Garantie remboursement Covid-19
Le propriétaire de cette annonce s’engage à vous rembourser intégralement si les dispositions réglementaires du gouvernement, à la lutte contre le Covid-19, rendent le séjour impossible :
  • Si vous vous retrouvez dans l'impossibilité de vous rendre sur le lieu du bien(confinement, interdiction de déplacement, ...), le propriétaire vous remboursera.
  • Si le propriétaire est contraint de renoncer à la location de son bien, il s’engage à vous rembourser.
Cette garantie ne s'applique pas aux autres motifs d'annulation que vous pourriez invoquer comme les plages fermées, les restaurants ou les commerces fermés, votre inquiétude personnelle, ...
Conditions de location
  • Acompte 25% du loyer
  • Arrhes 25% du loyer
  • Caution 500 €
  • Charges Comprises
  • Frais de nettoyage Inclus
  • Repas Non compris
  • Taxe de séjour Comprise
  • Versement du solde 2 semaines avant le séjour
Note
Particularités
  Localisation

Location de vacances - Appartement - Arc 2000, Bourg-Saint-Maurice, Savoie, Rhône-Alpes, Auvergne-Rhône-Alpes, France

  Détails
Nom du logement
Chalet le Chamois
Type de logement
Appartement situé dans un chalet
Nombre de personnes
7
Superficie
45 m²
Environnement
Montagne
Altitude
2000 m
N° d'annonce
933841
Aménagement intérieur
  • Séjour : 3 places assises
  • Salle à manger : 6 places assises
  • Cuisine indépendante
  • 1 salle de bain
  • 1 salle de douche
  • 2 toilettes
2 chambres
En dehors des chambres
Vues
  Equipements
À disposition
  • Aspirateur
  • Draps et linge
  • Fer à repasser
  • Garage
  • Hammam
  • Jacuzzi
  • Local à ski
  • Parking
  • Sauna
  • Sèche-cheveux
  • Serviettes
Cuisine
  • Appareil à raclette
  • Bouilloire
  • Congélateur
  • Cuisinière
  • Four
  • Four micro-ondes
  • Grille-pain
  • Lave-vaisselle
  • Machine à café
  • Plaques de cuisson
  • Réfrigérateur
  • Ustensiles de cuisine
  • Vaisselle et couverts
Multimédia
  • Câble / Satellite
  • Internet
  • Lecteur CD
  • Radio
  • Téléphone
  • Téléviseur
Chauffage et climatisation
  • Chauffage électrique
  • Chauffage par le sol
Divertissement
  • Appareil(s) de musculation
  • Babyfoot / kicker
  • Jeux de société
Extérieur
  • Balcon
  • Transat(s)
Piscine partagée
  • Avec système de sécurité
  • Chauffée
  • Intérieure
Photo de profil du vacancier
Photo de profil du propriétaire

Pour réserver cette location, rien de plus simple :
contactez l’hôte par mail ou par téléphone, et
réservez avec lui directement votre séjour !

Contacter l'hôte