Location appartement dans villa basque en face de l'océan à Bidart en Pyrénées-Atlantiques

Type Appartement
Personnes 4
Chambres2
Salles de bain1
Location de vacances - Appartement à Bidart
Location de vacances - Appartement à Bidart
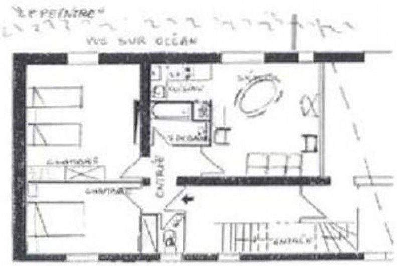
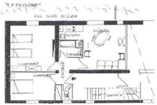
  Description : Appartement à Bidart

L'appartement est situé à l'étage,avec une trés belle vue sur l'océan,sur la plage au loin Fontarrabie (Espagne)Vous accédez à la plage par un petit chemin depuis le portail de

la villa, vous pouvez aller à pied à Guéthary (600m.)vous y trouverez des commerces, la visite du village s'impose vous y découvrirez les styles ' Néo Basque' et 1930 des villas, de la Mairie, des hôtels... Le soir vous avez le choix des restaurants du bord de mer. Depuis la villa vous pouvez emprunter le sentier de randonnée jusqu'à Hendaye

en passant par St Jean de Luz.Bien sûr le surf est roi,
depuis la villa vous êtes face au spot de 'Parlementia', de nombreuses écoles de surf vous feront découvrir ce sport .

Vous pouvez profiter dans une chaise longue,du jardin face à la mer.

Voir aussi - http://etchecarola.free.fr/Etche_Carola/Bienvenue.html
Lire moins Lire la suite

  Disponibilités

Pour connaître les disponibilités de cette location, veuillez contacter l'hôte directement.

  Tarifs

Pour connaître les tarifs de cette location, veuillez contacter l'hôte directement.

Conditions de location
  • Acompte Aucun
  • Caution Aucune
  Localisation

Location de vacances - Appartement - Bidart, Pyrénées-Atlantiques, Aquitaine, Nouvelle-Aquitaine, France

Villes et lieux touristiques à proximité
  • Guéthary
  Détails
Nom du logement
Le Peintre
Type de logement
Appartement
Nombre de personnes
4
Superficie
55 m²
Environnement
Mer
N° d'annonce
761695
Aménagement intérieur
  • Cuisine américaine
  • 1 salle de bain
  • 1 toilette
2 chambres
Vues
  Equipements
À disposition
  • Aspirateur
  • Fer à repasser
  • Lave linge
  • Planche à repasser
  • Sèche-cheveux
  • Sèche-linge
Cuisine
  • Congélateur
  • Four micro-ondes
  • Grille-pain
  • Lave-vaisselle
  • Machine à café
  • Plaques de cuisson
  • Réfrigérateur
  • Ustensiles de cuisine
  • Vaisselle et couverts
Multimédia
  • Internet
  • Téléviseur
Chauffage et climatisation
  • Chauffage central
Extérieur
  • Salon de jardin
  Activités
Sport
  • Baignade
  • Equitation
  • Golf
  • Pêche en eau douce
  • Planche à voile
  • Randonnées pédestres
  • Surf
  • Tennis
  • Voile
  • VTT / Vélo
Loisirs
Photo de profil du vacancier
Photo de profil du propriétaire

Pour réserver cette location, rien de plus simple :
contactez l’hôte par mail ou par téléphone, et
réservez avec lui directement votre séjour !

Contacter l'hôte