Location appartement à Tignes en Savoie - Rhône-Alpes au pied du glacier de La Grande Motte

Type Appartement
Personnes 7
Chambres2
Salles de bain2
Location de vacances - Appartement à Tignes
Location de vacances - Appartement à Tignes
  Description : Appartement à Tignes

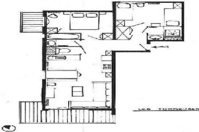
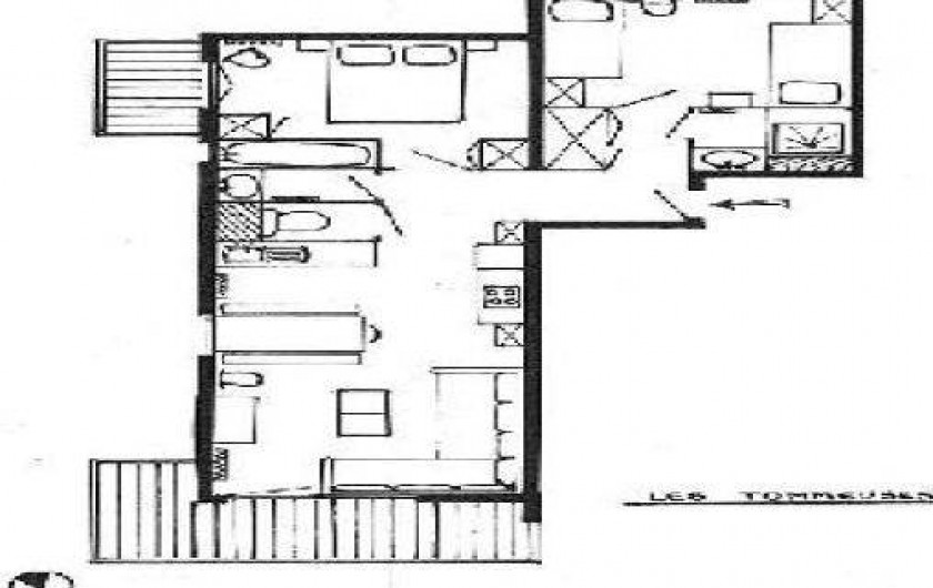
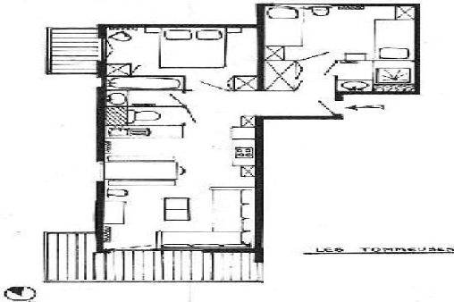
Situé au pied des pistes, face aux montagnes, notre appartement à la décoration soignée a été rénové en 2009. Exposé sud, il se trouve au 4ème étage d'une résidence calme pourvue d'un ascenseur et d'un local à skis.

Spacieux, il comprend 1 lit double dans une chambre, 1 lit simple et 1 lit superposé dans une seconde chambre, ainsi qu'un canapé-lit dans le salon, pouvant ainsi accueillir 6 à 7 personnes.

D'une surface de 50 m², il possède en outre une cuisine américaine entièrement équipée, un balcon, une salle de bains, une salle d'eau et des toilettes
indépendantes.

Nous mettrons en outre à votre disposition une télévision, un lecteur DVD, une chaîne hi-fi, des jeux de société et un lit bébé.
Lire moins Lire la suite

  Disponibilités

Pour connaître les disponibilités de cette location, veuillez contacter l'hôte directement.

  Tarifs

Pour connaître les tarifs de cette location, veuillez contacter l'hôte directement.

Conditions de location
  • Acompte Aucun
  • Caution Aucune
Particularités
  Localisation

Location de vacances - Appartement - Tignes, Savoie, Rhône-Alpes, Auvergne-Rhône-Alpes, France

Villes et lieux touristiques à proximité
  • Bourg-Saint-Maurice
  Détails
Type de logement
Appartement
Nombre de personnes
7
Superficie
50 m²
Environnement
Montagne
N° d'annonce
628809
Aménagement intérieur
  • Cuisine américaine
  • 2 salles de bain
  • 1 toilette
2 chambres
Vues
  Equipements
À disposition
  • Aspirateur
  • Fer à repasser
  • Planche à repasser
  • Sèche-cheveux
Cuisine
  • Bouilloire
  • Congélateur
  • Four
  • Four micro-ondes
  • Grille-pain
  • Lave-vaisselle
  • Machine à café
  • Plaques de cuisson
  • Réfrigérateur
  • Vaisselle et couverts
Multimédia
  • Lecteur DVD
  • Radio
  • Téléviseur
  Activités
Sport
  • Equitation
  • Golf
  • Randonnées pédestres
  • Ski alpin
  • Tennis
  • VTT / Vélo
Loisirs
Photo de profil du vacancier
Photo de profil du propriétaire

Pour réserver cette location, rien de plus simple :
contactez l’hôte par mail ou par téléphone, et
réservez avec lui directement votre séjour !

Contacter l'hôte
Promotion Skiset